扫一扫浏览分享
- 区域方位:
- 市中心区
- 小区地段:
- 同鑫第一城公寓
- 房屋类型:
- 多层
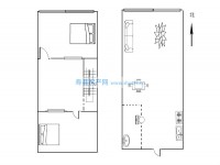
- 户型结构:
- 2室1厅1卫
- 所在楼层:
- 中层 楼
- 装修程度:
- 毛坯未装
- 楼层总数:
- 14 层
- 建筑面积:
- 49.59㎡
- 车库情况:
- 契证年数:
- 已满两年
- 小学学区:
- 实验小学
- 中学学区:
- 寿县三中
- 房屋朝向:
- 朝南
- 土地性质:
- 国有出让
- 建成年份:
- 每平单价:
- 2742元/㎡
- 证件情况:
- 证件齐全
- 交易价格:
- 13.60万 房贷计算器
- 配套设施:
- 备注说明:
- 朝南边的调高复试房,捡漏价拼手速好房!
- 联系方式 ▽
-
- 友情提示:
- 来电咨询时请告知本信息来自寿县房产网,以获得更多帮助与信任。
- 联 系 人:
- 宋克芹
- 手机号码:
- 18255456101
- 微 信 号:
- 18255456101
- 电话/短号:
- 18255456101
- 企业名称:
- 楚都地产
- 企业地址:
- 寿县景润中央城西门(楚都地产)
- 房源照片 ▽

- 宋克芹
(楚都地产) - 18255456101 18255456101


免责声明:本站所刊载的所有的房源信息、活动信息、资料及图片均由网站用户提供,其真实性、合法性由信息发布人负责,本网站不声明或保证其内容之正确性或可靠性。所有信息请与经纪公司、房产公司、家装公司、业主个人等确认为准!