扫一扫浏览分享
- 区域方位:
- 市中心区
- 小区地段:
- 环球港
- 房屋类型:
- 高层
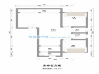
- 户型结构:
- 3室2厅2卫
- 所在楼层:
- 低层 楼
- 装修程度:
- 毛坯未装
- 楼层总数:
- 18 层
- 建筑面积:
- 123.00㎡
- 车库情况:
- 契证年数:
- 小学学区:
- 中学学区:
- 房屋朝向:
- 土地性质:
- 建成年份:
- 0
- 每平单价:
- 5528元/㎡
- 证件情况:
- 交易价格:
- 68.00万 房贷计算器
- 配套设施:
- 备注说明:
- 联系方式 ▽
-
- 友情提示:
- 来电咨询时请告知本信息来自寿县房产网,以获得更多帮助与信任。
- 联 系 人:
- 王小利
- 手机号码:
- 18115806608
- 微 信 号:
- 电话/短号:
- 18115806608
- 企业名称:
- 朝阳房产
- 企业地址:
- 寿县 玫瑰公馆 北门 朝阳房产
- 房源照片 ▽














- 王小利
(朝阳房产) - 18115806608 18115806608

免责声明:本站所刊载的所有的房源信息、活动信息、资料及图片均由网站用户提供,其真实性、合法性由信息发布人负责,本网站不声明或保证其内容之正确性或可靠性。所有信息请与经纪公司、房产公司、家装公司、业主个人等确认为准!